本文内容针对新型冠状病毒肺炎应急传染病医院内的暖通设计,SAREN三仁小编为您收集整理以下医院内暖通设计要点。
一、对本次应急医院的定位
1.医护人员是第一保护对象,不接触病患的院内工作人员是第二保护对象。
2.医护人员的物理防护隔离措施完善、到位。
3.不排除病毒变异通过气溶胶传播。
4.收治病人为高度疑似+确诊病人,以确诊病人为主。
二、设计原则
1.安全——最大限度降低空气传播风险
2.可靠——尽可能减少维护工作,降低工作人员感染风险
3.简单一一节约安装时间
三、通风目标
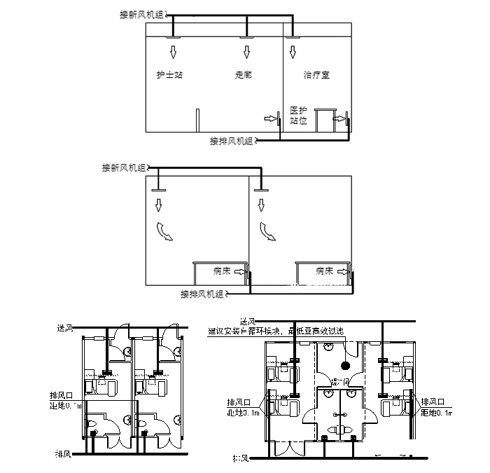
1.在医院内营造定向单向的空气流动方向:清洁区→半污染区→污染区。
2.在半污染区、污染区,采用6次以上的通风里稀释室内污染空气,降低病菌浓度,降低区域内医护人员感染风险。
3.为重症病人营造洁净环境,降低并发症死亡风险。
四、设计概要
1.通风系统划分:清洁区、半污染区、污染区的机械送、排风系统应按区域分别设置, 半污染区中的医护走廊单独设置送排风系统。
3.区域空气流向:清洁区→半污染区→污染区。
4. 通风量
5. 气流组织:上送风、下排风

6. 空气过滤器最低要求
新风- - -粗效+中效+高中效过滤器( 重症病房、手术室采用高效过滤器)
排风——粗效+亚高效/高效过滤器
虽然冠状病毒粒经约为0.1 um,但其附着的颗粒粒经范围为1~10, MERVI4、MERVI5、 MERV16对I ~3 um微粒的过滤效率分别为90、90、 95, MRVI4 ~16相当于我国标准的亚高效过滤器的效率。为降低排风中病毒浓度, 对排风提出最低亚高效过滤要求,在目前形势不明情况下,安全起见,建议排风系统设置高效过滤,有条件时推荐采用袋进袋出高效过滤,以降低维护人员的感染风险。
7.间距:新风机组取风口与排风机组排出口之间水平间距大于15m。新风口距地3m,排风口距地至少6m。
8.冷热处理
室内——分体空调
新风——直膨式新风机组或电加热
9.其它
新、排风机组均安装在室外开敞地带或清洁区,不得设置于病人活动区或污染区内;
风管主管尽里少变径,建筑高度条件许可就不变径,主管风速4 5m/s,尽里小,支管风速可取4m/s,不装调节阀(没时间),如果设置调节阀,不得设在病房内。
装配式的送排风模块是目前最佳方案——不需调试, 平衡能力强,接上主风管即可用,唯一担忧的是生产供货能力。
五、其他
1.应设库房存放足里的过滤器,可按工程清单的3倍库存。
2.排风过滤器更换后,应就地封装后集中焚烧。
3.污染区的排风机组应备有库存。
六、备患
目前建设的应急医院只是关注控制传染,而对免疫缺陷的传染病人很难起到保护作用,恰恰此次疫情患者以中老年人为主,老年人普遍免疫系统较弱,因此不排除未来出现一些免疫缺陷又 感染新型冠状病毒的患者,为防患于未然,建议在应急医院设置几间特殊病房,用于收治此类病人。
保护型空气传播隔离病房设计要点:
1.送风口位于病床上方。
2.排风口位于靠近病房门口下部。
3.缓冲间的压力相对于病房和走廊(或普通区域)要么都是正压,要么都是负压, 设计可选,但必须同时正压或负压,不允许在病房、前室、走廊(或普通区域)之间出现递增(或递减)的阶梯压差。
注:无论前室相对正压还是负压,病房相对室外总是正压。
4.应安装两套永久性的压差监测装置,一套监测病房与前室压差, 另-套监测前室 与走廊(或普通区域),每套装置都应在病房外提供就地可视化装置来显示压差是否得以维持。
5.保护型空气传播隔离病房的计算风里可参照GB50849负压隔离病房的最小12次换气,病房内送风末级过滤器建议采用类高效过滤器。

